Классика 5 №917

Цена строительства от 7 540 000 ₽* * Стоимость не является окончательной
Заявка на консультацию
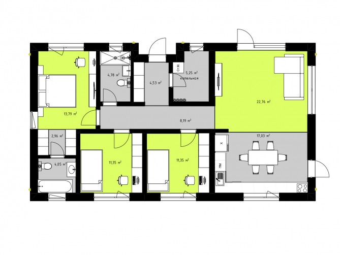
  • Общая площадь 106 м2
  • Длина 15.6 м
  • Ширина 8.6 м
  • Материал стен Газобетон/пеноблок
  • Количество этажей 1
  • Подвал Нет
  • Мансарда без мансарды
  • Гараж Нет
  • Терраса Нет
  • Проживание Круглогодичное
  • Количество комнат 4
  • Количество спален 3
  • Количество санузлов 2
  • Вид проекта дом
  • Застройщик ДМ ГРУПП
  • Архитектурный стиль Классический
  • Отделка фасада Комбинированная
  • Крыша Двускатная
  • Можно купить домокомплект Нет
  • Модульный тип строения Нет
Планировки
Описание проекта
Проект «Классика 5» от ДМ ГРУПП — это современный одноэтажный дом в классическом стиле с двускатной кровлей. 
Комплектация «тёплый контур»
  • фундамент - жб плита ребристая;
  • стены - автоклавный газобетон;
  • перекрытия - деревянные;
  • кровля - утепленная, металлочерепица или профлист;
  • окна - 5 -ти камерный профиль кашированные;
  • отмостка - скрытая;
  • инженерка - закладные под ввод коммуникации. Разводка основной канализации. Септик переливной, 7 м3.
Комплектация «white bох» 10 310 000 р.
  • комплектация «тёплый контур»;
  • фасад - декоративная штукатурка;
  • электрика - разводка электрики в котельной, подключение котельного оборудования. Заземление;
  • отопление - теплый пол + тёплые подоконники, разводка для датчиков автоматизации. Электро - котёл; водоснабжение - шитый полипропилен с латунными выходом для подключения;
  • чистовой пол - утепленная стяжка;
  • монтаж плитки в котельной;
  • штукатурка;
  • септик - переливной;
  • терраса и крыльцо жб 

Комплектация «Тёплый контур» — 7,54 млн ₽

Комплектация «White Box» — 11,85 млн ₽

Вас может заинтересовать
Вас может заинтересовать

Выбор местоположения

Задать вопрос / написать нам

E-mail: domgis@mail.ru

Мы свяжемся с Вами в течение дня.

Тех. поддержка
Предмет обращения:
Тукущая страница

Мы свяжемся с Вами в течение дня.

Уведомление
Предмет обращения:
Тукущая страница
Обратный звонок
Обратный звонок
Выберите ваш город
Пожаловаться

Объявление опубликовано.
Изменения сохранены

Период публикации - бессрочный, при условии подтверждения актуальности каждые 50 дней. Уведомления будут отправляться на Вашу электронную почту.

Выберите причину снятия с публикации

Снятые с публикации объявления не участвуют в поиске и недоступны для подробного просмотра.

Для повторной публикации нажмите «Вернуть в публикацию»